

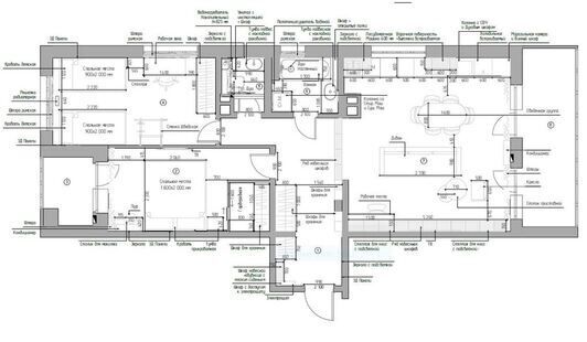
Дизайн квартиры выполнен в современном стиле. Нейтральная палитра наполняет пространство лёгкостью, а тщательно продуманные архитектурные приёмы, богатство фактур и оригинальные сценарии освещения подчёркивают целостность интерьера.
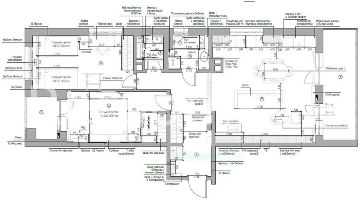
Дизайн квартиры выполнен в современном стиле. Нейтральная палитра наполняет пространство лёгкостью, а тщательно продуманные архитектурные приёмы, богатство фактур и оригинальные сценарии освещения подчёркивают целостность интерьера.
