

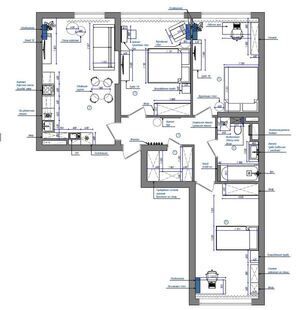
Проект этой четырехкомнатной квартиры выполнен в стиле контемпорари и отличается сдержанностью и элегантностью. Светлые нейтральные оттенки создают ощущение простора, а натуральные материалы в отделке и декоре наполняют интерьер уютом и теплом.
Проект этой четырехкомнатной квартиры выполнен в стиле контемпорари и отличается сдержанностью и элегантностью. Светлые нейтральные оттенки создают ощущение простора, а натуральные материалы в отделке и декоре наполняют интерьер уютом и теплом.
