
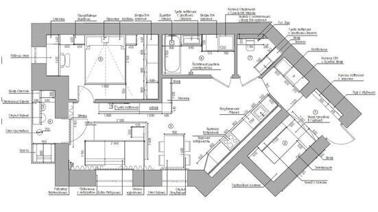
Проект этой двухкомнатной квартиры выполнен в современном стиле с элементами лофта. Гармоничное сочетание цветов, игра на контрастах, использование разнообразных текстур, высококачественные отделочные материалы, интересный световой сценарий - все это помогло создать модный, комфоррный и эстетически привлекательный интерьер.
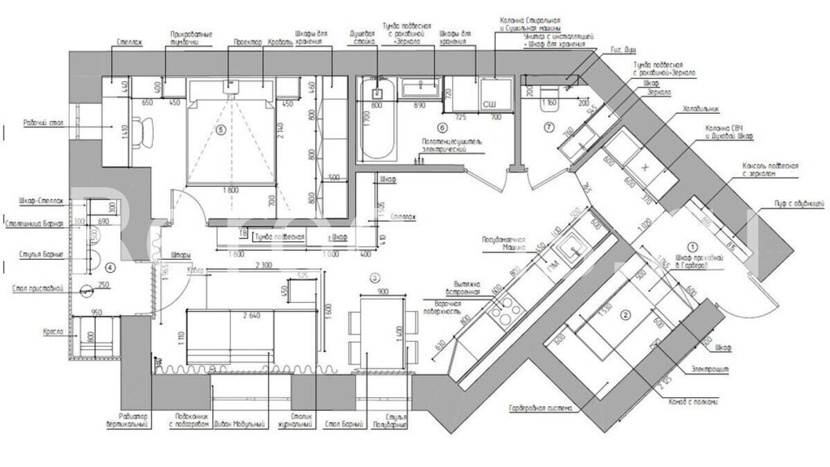
Проект этой двухкомнатной квартиры выполнен в современном стиле с элементами лофта. Гармоничное сочетание цветов, игра на контрастах, использование разнообразных текстур, высококачественные отделочные материалы, интересный световой сценарий - все это помогло создать модный, комфоррный и эстетически привлекательный интерьер.
