

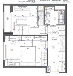
В оформлении этой однокомнатной квартиры реализованы принципы современного стиля. Спокойные натуральные оттенки с яркими акцентами, игра разных фактур, качественные отделочные материалы и тщательно продуманное освещение создают интерьер, который гармонично объединяет комфорт и эстетическую выразительность.
В оформлении этой однокомнатной квартиры реализованы принципы современного стиля. Спокойные натуральные оттенки с яркими акцентами, игра разных фактур, качественные отделочные материалы и тщательно продуманное освещение создают интерьер, который гармонично объединяет комфорт и эстетическую выразительность.
