
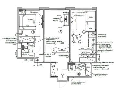
Дизайн-проект этой квартиры выполнен в современном стиле. Минималистичный дизайн, современная мебель, сдержанная цветовая гамма, ультрамодные светильники, подобранные для интерьера - все это выглядит здесь необычайно гармонично и целостно.
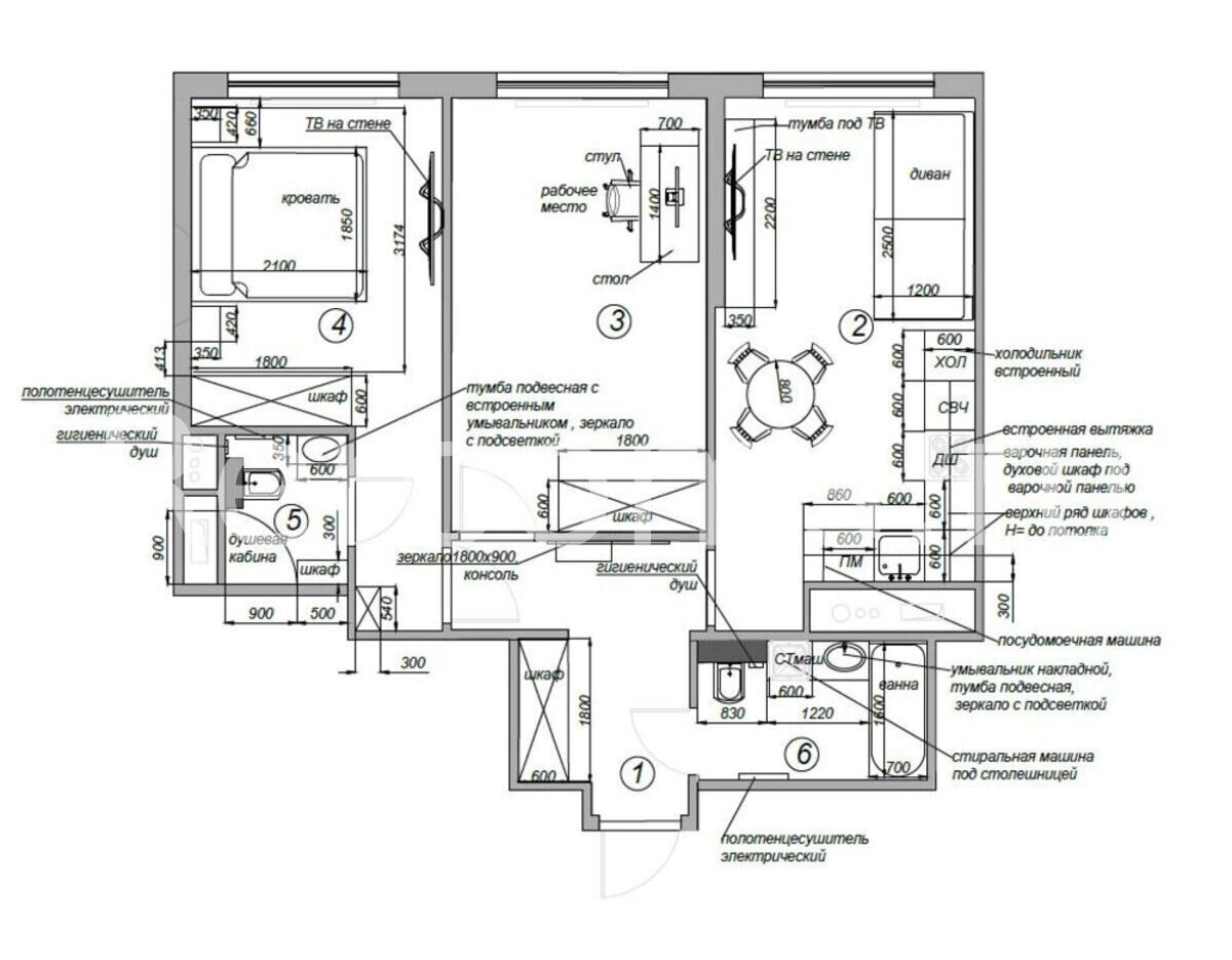
Дизайн-проект этой квартиры выполнен в современном стиле. Минималистичный дизайн, современная мебель, сдержанная цветовая гамма, ультрамодные светильники, подобранные для интерьера - все это выглядит здесь необычайно гармонично и целостно.
