
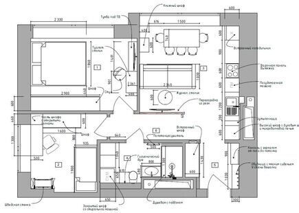
Интерьеры в стиле модернизм это всегда современно и актуально. Интересные дизайнерские находки, цветовая гамма, построенная на контрастах, удобная эргономичная мебель - в этой квартире все работает на поддержание современной стилистической концепции.
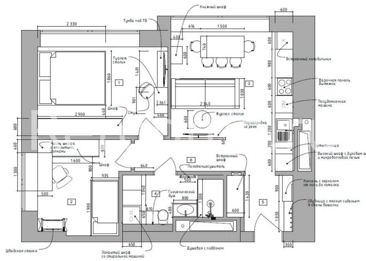
Интерьеры в стиле модернизм это всегда современно и актуально. Интересные дизайнерские находки, цветовая гамма, построенная на контрастах, удобная эргономичная мебель - в этой квартире все работает на поддержание современной стилистической концепции.
