

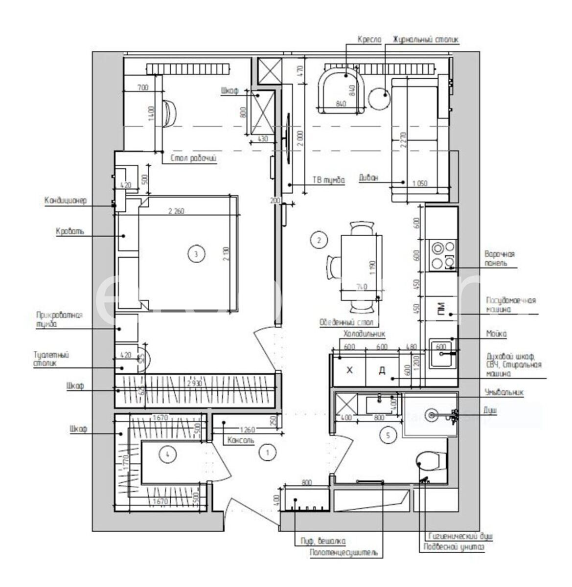
Дизайн-проект этой квартиры выполнен в стиле модернизм. Обилие разнообразных текстур и классные дизайнерские находки сделали интерьер необычайно гармоничным и целостным. Разноплановое освещение придает пространству индивидуальный характер, а гармоничное сочетание цветов делает его стильным и уникальным.
Дизайн-проект этой квартиры выполнен в стиле модернизм. Обилие разнообразных текстур и классные дизайнерские находки сделали интерьер необычайно гармоничным и целостным. Разноплановое освещение придает пространству индивидуальный характер, а гармоничное сочетание цветов делает его стильным и уникальным.
