

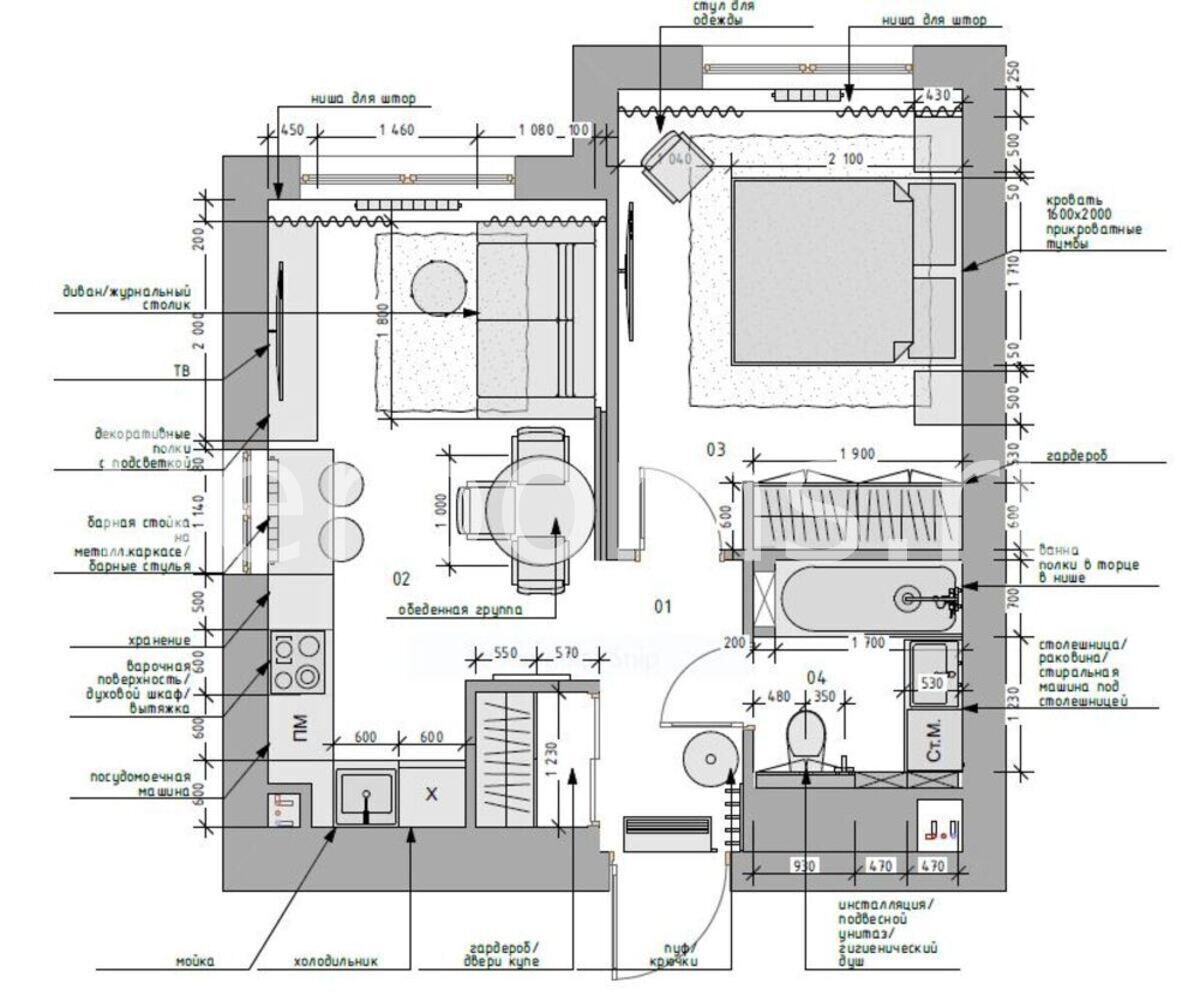
Интерьер в стиле модернизм всегда выглядит свежо и актуально. Необычные дизайнерские решения, игра фактур, выверенная цветовая палитра и удобная, эргономичная мебель — всё в этой квартире подчёркивает современный характер и поддерживает единую концепцию.
Интерьер в стиле модернизм всегда выглядит свежо и актуально. Необычные дизайнерские решения, игра фактур, выверенная цветовая палитра и удобная, эргономичная мебель — всё в этой квартире подчёркивает современный характер и поддерживает единую концепцию.
