

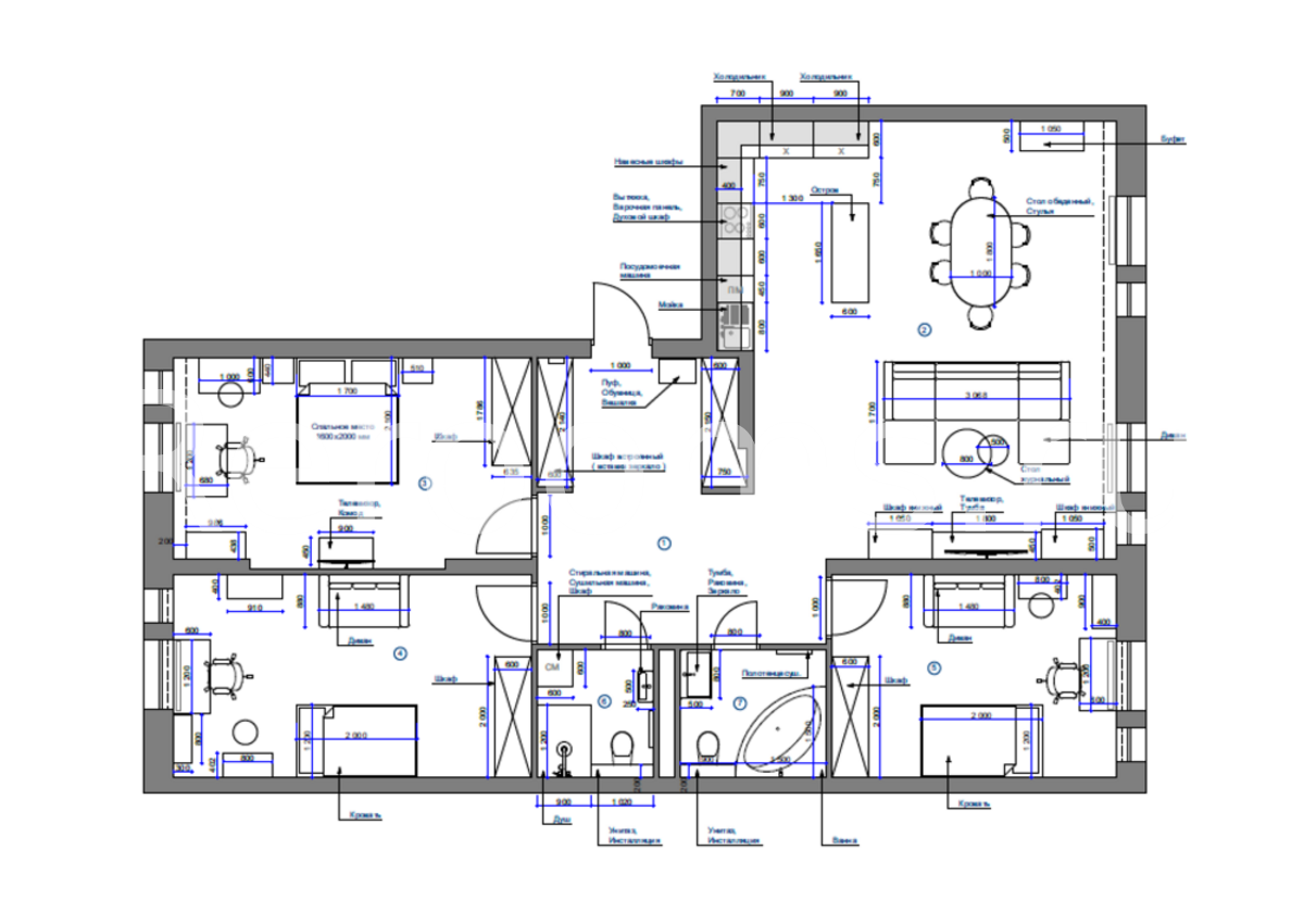
Дизайн-проект четырехкомнатной квартиры выполнен в стиле современная классика. Интерьер отличается изяществом и функционализмом. Здесь все продумано до мелочей. Цвет, отделка, композиция, а также разнообразные приемы декорирования создают в квартире неповторимую атмосферу респектабельности и уюта.
Дизайн-проект четырехкомнатной квартиры выполнен в стиле современная классика. Интерьер отличается изяществом и функционализмом. Здесь все продумано до мелочей. Цвет, отделка, композиция, а также разнообразные приемы декорирования создают в квартире неповторимую атмосферу респектабельности и уюта.
