

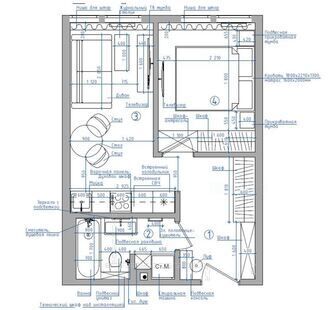
Интерьер этой компактной двухкомнатной квартиры выполнен в современном стиле. Лаконичная мебель, продуманная цветовая палитра и дизайнерские приемы помогают визуально расширить пространство, создавая уютную и эстетичную атмосферу.
Интерьер этой компактной двухкомнатной квартиры выполнен в современном стиле. Лаконичная мебель, продуманная цветовая палитра и дизайнерские приемы помогают визуально расширить пространство, создавая уютную и эстетичную атмосферу.
