

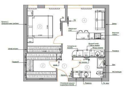
Модернизм придаёт пространству особое настроение и характер. Интерьер этой двухкомнатной квартиры, выполненный в этом стиле, впечатляет утончённостью и продуманностью каждой детали. Разные дизайнерские приёмы, выразительные цветовые контрасты и функциональная мебель создают цельный и гармоничный образ.
Модернизм придаёт пространству особое настроение и характер. Интерьер этой двухкомнатной квартиры, выполненный в этом стиле, впечатляет утончённостью и продуманностью каждой детали. Разные дизайнерские приёмы, выразительные цветовые контрасты и функциональная мебель создают цельный и гармоничный образ.
