

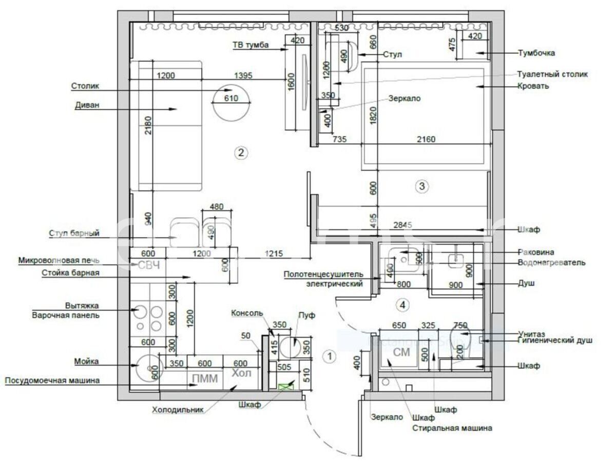
Интерьер квартиры выполнен в современном ключе с элементами лофт-эстетики. Глубокие тёмные оттенки формируют элегантную, сдержанную атмосферу, а продуманная архитектура, игра фактур и необычные световые решения подчёркивают концепцию актуального дизайна.
Интерьер квартиры выполнен в современном ключе с элементами лофт-эстетики. Глубокие тёмные оттенки формируют элегантную, сдержанную атмосферу, а продуманная архитектура, игра фактур и необычные световые решения подчёркивают концепцию актуального дизайна.
