

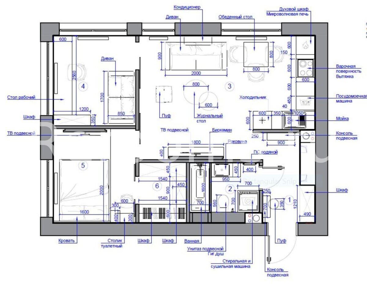
Дизайн-проект этой трехкомнатной квартиры выполнен в современном стиле. Интересные дизайнерские решения, обилие разнообразных текстур, красивая мебель и современные элементы декора - все это сделало интерьер необычайно гармоничным и целостным. Разноплановое освещение придло пространству индивидуальный характер, а гармоничное сочетание цветов сделало его стильным и уникальным.
Дизайн-проект этой трехкомнатной квартиры выполнен в современном стиле. Интересные дизайнерские решения, обилие разнообразных текстур, красивая мебель и современные элементы декора - все это сделало интерьер необычайно гармоничным и целостным. Разноплановое освещение придло пространству индивидуальный характер, а гармоничное сочетание цветов сделало его стильным и уникальным.
