
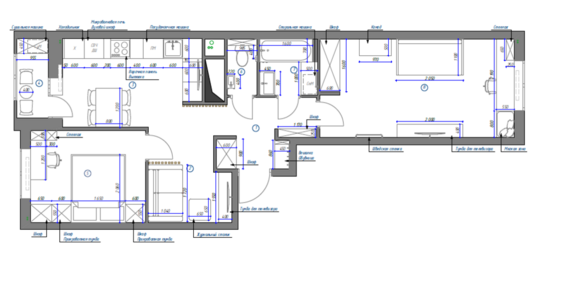
За основу оформления этой двухкомнатной квартиры взят современный стиль. Гармоничное сочетание цветов, использование разнообразных текстур, высококачественные отделочные материалы, интересный световой сценарий - все это помогло создать комфортный и эстетически привлекательный интерьер.
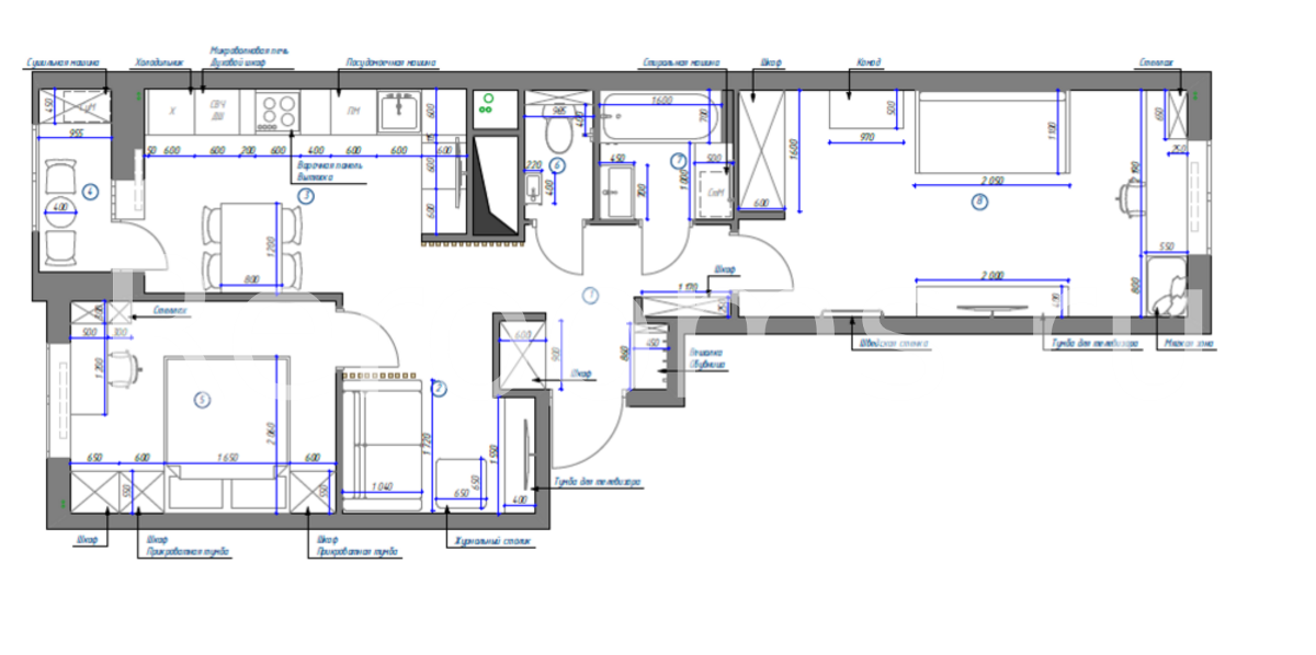
За основу оформления этой двухкомнатной квартиры взят современный стиль. Гармоничное сочетание цветов, использование разнообразных текстур, высококачественные отделочные материалы, интересный световой сценарий - все это помогло создать комфортный и эстетически привлекательный интерьер.
