

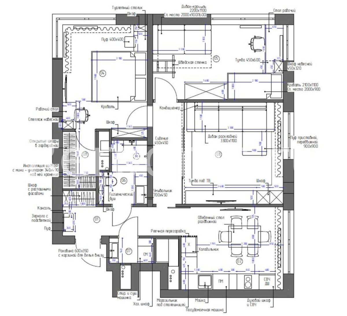
Интерьер, оформленный в стиле модернизм, всегда выглядит модно и современно. Интересные дизайнерские находки, изысканная цветовая гамма, удобная эргономичная мебель - в этой квартире все работает на поддержание современной стилистической концепции.
Интерьер, оформленный в стиле модернизм, всегда выглядит модно и современно. Интересные дизайнерские находки, изысканная цветовая гамма, удобная эргономичная мебель - в этой квартире все работает на поддержание современной стилистической концепции.
