

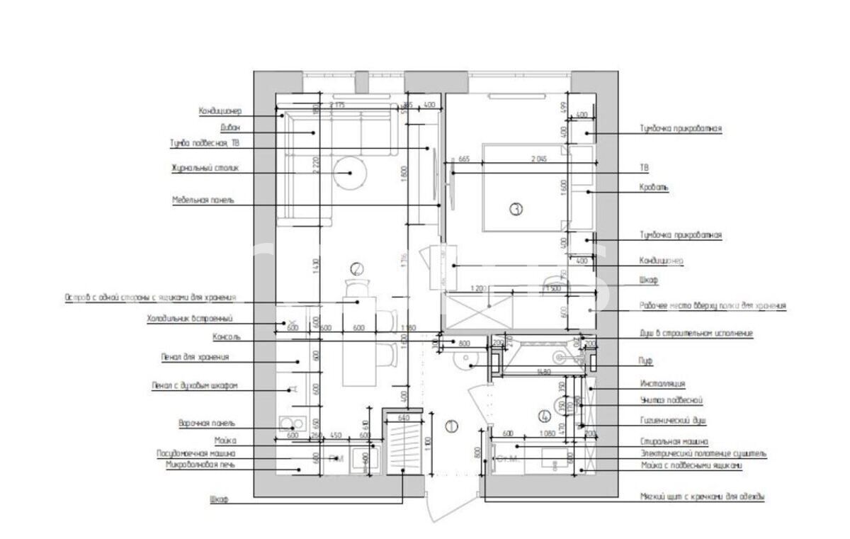
Интерьер этой двухкомнатной квартиры выполнен в стиле лофт. Брутальные текстуры, современные индустриальные светильники, а также металлические элементы декора придают помещению дух фабричного пространства. В интерьере преобладают характерные для лофтовой стилистики цвета, такие как серый и графитовый, а в дополнение к ним подобран цвет натурального дерева. Пространство квартиры функционально и четко соответствует выбранной концепции.
Интерьер этой двухкомнатной квартиры выполнен в стиле лофт. Брутальные текстуры, современные индустриальные светильники, а также металлические элементы декора придают помещению дух фабричного пространства. В интерьере преобладают характерные для лофтовой стилистики цвета, такие как серый и графитовый, а в дополнение к ним подобран цвет натурального дерева. Пространство квартиры функционально и четко соответствует выбранной концепции.
