

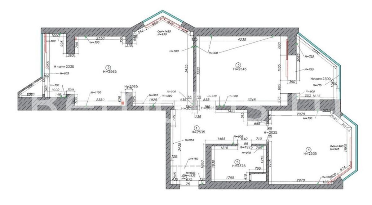
Интерьер, оформленный в стиле модернизм, отличается особой утонченностью. Интересные дизайнерские находки, изысканная цветовая гамма, удобная эргономичная мебель - в этой квартире все работает на поддержание современной стилистической концепции.
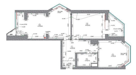
Интерьер, оформленный в стиле модернизм, отличается особой утонченностью. Интересные дизайнерские находки, изысканная цветовая гамма, удобная эргономичная мебель - в этой квартире все работает на поддержание современной стилистической концепции.
