

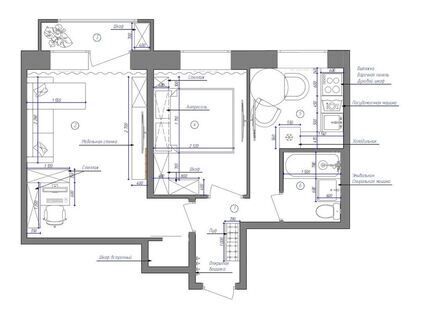
Проект этой двухкомнатной квартиры выполнен в скандинавском стиле. Дизайн выглядит лаконично и очень современно. В интерьере преобладают светлые тона, характерные для сканди-стилистики. Наличие натуральных материалов в отделке и оформлении создает в помещении особую атмосферу тепла и уюта.
Проект этой двухкомнатной квартиры выполнен в скандинавском стиле. Дизайн выглядит лаконично и очень современно. В интерьере преобладают светлые тона, характерные для сканди-стилистики. Наличие натуральных материалов в отделке и оформлении создает в помещении особую атмосферу тепла и уюта.
