

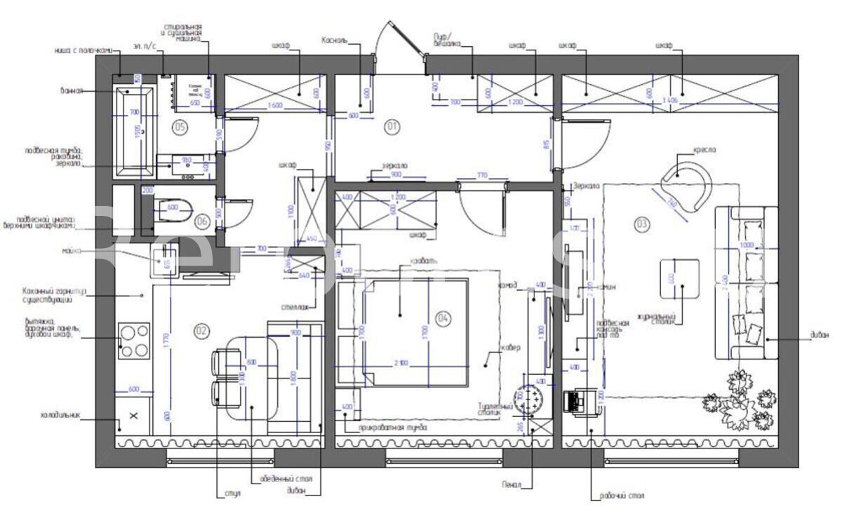
Дизайн-проект двухкомнатной квартиры выполнен в стиле модернизм. Красивая архитектура пространства, обилие разнообразных текстур, современные элементы декора - все выглядит необычайно гармонично и целостно. Разноплановое освещение придает пространству индивидуальный характер, а гармоничное сочетание цветов делает его стильным и уникальным.
Дизайн-проект двухкомнатной квартиры выполнен в стиле модернизм. Красивая архитектура пространства, обилие разнообразных текстур, современные элементы декора - все выглядит необычайно гармонично и целостно. Разноплановое освещение придает пространству индивидуальный характер, а гармоничное сочетание цветов делает его стильным и уникальным.
