
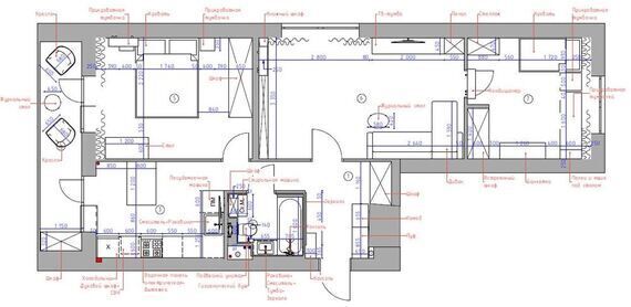
За основу оформления этой трехкомнатной квартиры взят современный стиль. Гармоничная цветовая гамма в природных тонах, использование разнообразных текстур, высококачественные отделочные материалы, интересный световой сценарий - все это помогло создать комфортный и эстетически привлекательный интерьер.
За основу оформления этой трехкомнатной квартиры взят современный стиль. Гармоничная цветовая гамма в природных тонах, использование разнообразных текстур, высококачественные отделочные материалы, интересный световой сценарий - все это помогло создать комфортный и эстетически привлекательный интерьер.
