

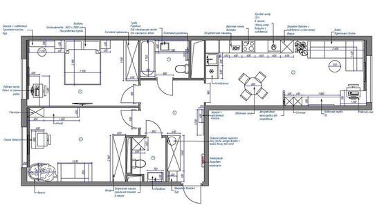
Стиль модернизм наполняет пространство особой атмосферой. Интерьер этой трёхкомнатной квартиры, оформленный в духе модернизма, поражает изысканностью и вниманием к деталям. Оригинальные дизайнерские решения, контрастная цветовая палитра и эргономичная мебель гармонично воплощают выбранную стилистику.
Стиль модернизм наполняет пространство особой атмосферой. Интерьер этой трёхкомнатной квартиры, оформленный в духе модернизма, поражает изысканностью и вниманием к деталям. Оригинальные дизайнерские решения, контрастная цветовая палитра и эргономичная мебель гармонично воплощают выбранную стилистику.
