

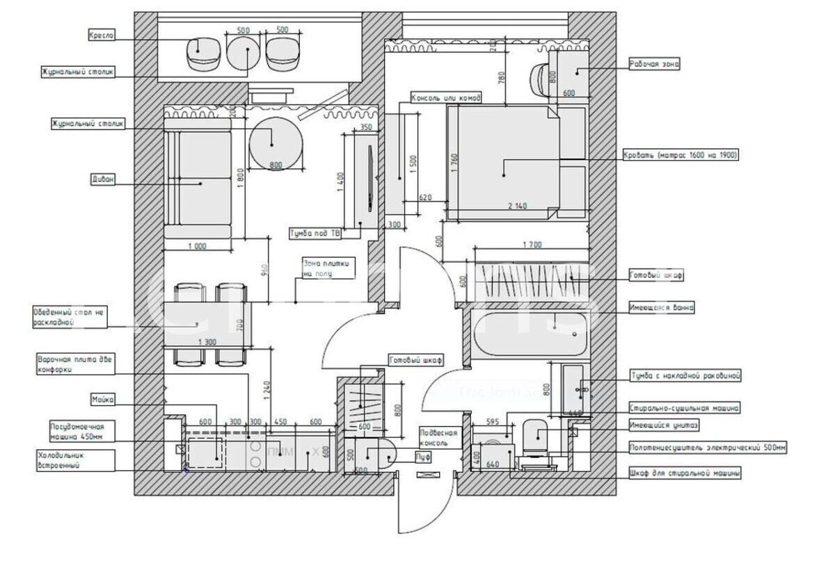
Дизайн двухкомнатной квартиры выполнен в современном стиле. Сочетание различных фактур и актуальных декоративных элементов образует цельную и гармоничную композицию. Разнообразное освещение формирует настроение и подчеркивает характер интерьера, а продуманная цветовая палитра придает пространству индивидуальность и особое очарование.
Дизайн двухкомнатной квартиры выполнен в современном стиле. Сочетание различных фактур и актуальных декоративных элементов образует цельную и гармоничную композицию. Разнообразное освещение формирует настроение и подчеркивает характер интерьера, а продуманная цветовая палитра придает пространству индивидуальность и особое очарование.
