

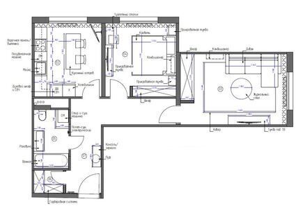
Эта двухкомнатная квартира оформлена в стиле современной классики, объединяющем красоту, комфорт и функциональность. Интерьер отличается сдержанной элегантностью, а каждое помещение тщательно продумано и связано общей концепцией. Архитектурные линии и изысканные детали оформления придают пространству выразительность и утончённый шарм.
Эта двухкомнатная квартира оформлена в стиле современной классики, объединяющем красоту, комфорт и функциональность. Интерьер отличается сдержанной элегантностью, а каждое помещение тщательно продумано и связано общей концепцией. Архитектурные линии и изысканные детали оформления придают пространству выразительность и утончённый шарм.
