

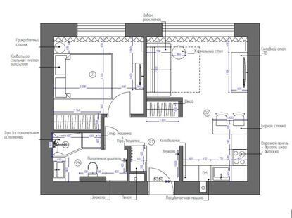
Дизайн-проект двухкомнатной квартиры выполнен в стиле модернизм. Интересные архитектурные решения, обилие разнообразных текстур, современные элементы декора в интерьере смотрятся необычайно гармонично и целостно. Разноплановое освещение придает пространству индивидуальный характер, а гармоничное сочетание цветов делает его стильным и уникальным.
Дизайн-проект двухкомнатной квартиры выполнен в стиле модернизм. Интересные архитектурные решения, обилие разнообразных текстур, современные элементы декора в интерьере смотрятся необычайно гармонично и целостно. Разноплановое освещение придает пространству индивидуальный характер, а гармоничное сочетание цветов делает его стильным и уникальным.
