
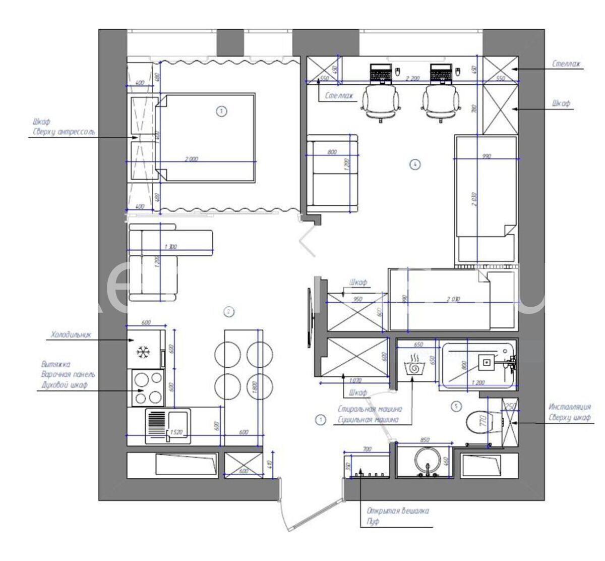
Интерьер этой двухкомнатной квартиры оформлен в стиле лофт. Открытая кирпичная кладка, индустриальные светильники и металлические детали создают атмосферу брутального фабричного пространства. Палитру задают типичные для этого стиля оттенки — глубокий чёрный, холодный серый и тёплый терракотовый. Планировка продумана до мелочей, оставаясь максимально функциональной и полностью соответствуя выбранной концепции.
Интерьер этой двухкомнатной квартиры оформлен в стиле лофт. Открытая кирпичная кладка, индустриальные светильники и металлические детали создают атмосферу брутального фабричного пространства. Палитру задают типичные для этого стиля оттенки — глубокий чёрный, холодный серый и тёплый терракотовый. Планировка продумана до мелочей, оставаясь максимально функциональной и полностью соответствуя выбранной концепции.
