

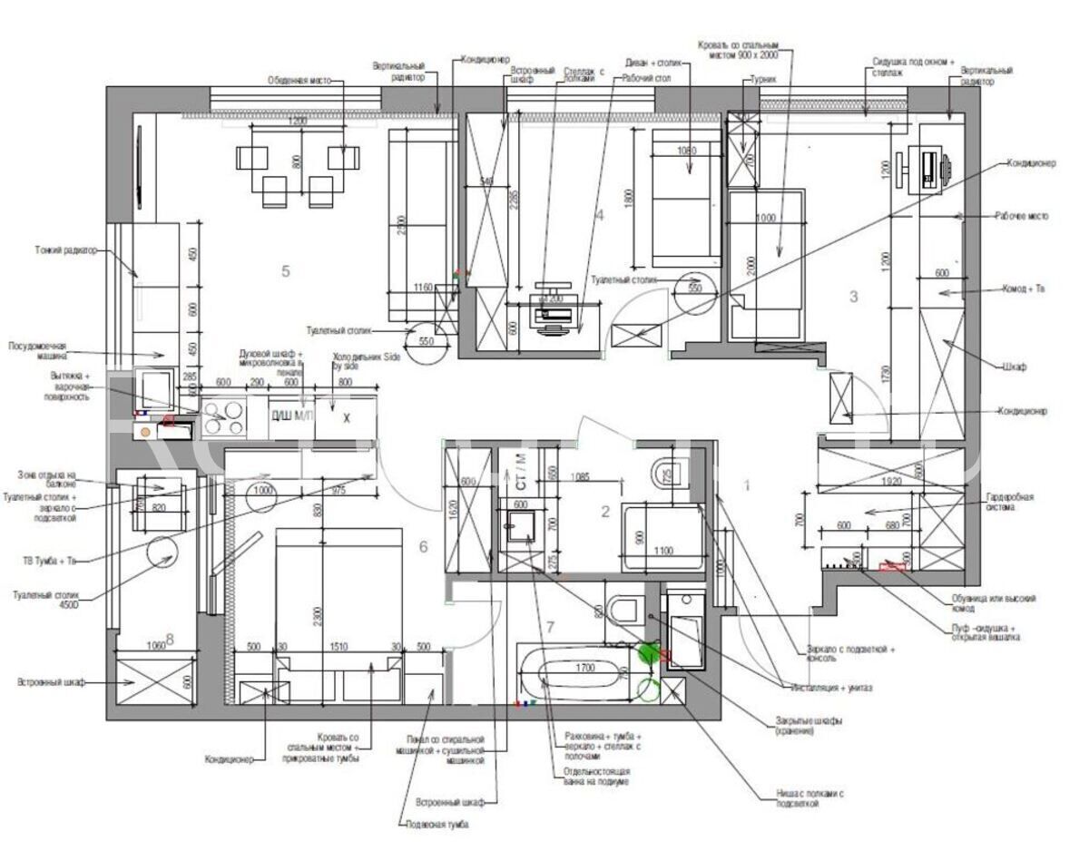
Эта четырехкомнатная квартира оформлена в современном стиле. Сдержанная нейтральная палитра придаёт интерьеру утончённость, а продуманная архитектура, разнообразие фактур и грамотное освещение создают ощущение цельности и гармонии.
Эта четырехкомнатная квартира оформлена в современном стиле. Сдержанная нейтральная палитра придаёт интерьеру утончённость, а продуманная архитектура, разнообразие фактур и грамотное освещение создают ощущение цельности и гармонии.
