
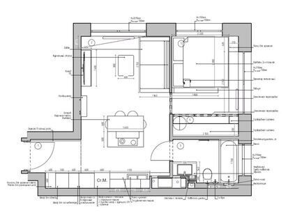
Интерьер этой двухкомнатной квартиры оформлен в стиле лофт. Открытая кирпичная кладка, индустриальные светильники современного дизайна и металлические акценты создают атмосферу брутального фабричного пространства. В отделке преобладают типичные для лофта оттенки — серый и терракотовый. Пространство продумано функционально и полностью отражает выбранную концепцию.
Интерьер этой двухкомнатной квартиры оформлен в стиле лофт. Открытая кирпичная кладка, индустриальные светильники современного дизайна и металлические акценты создают атмосферу брутального фабричного пространства. В отделке преобладают типичные для лофта оттенки — серый и терракотовый. Пространство продумано функционально и полностью отражает выбранную концепцию.
