

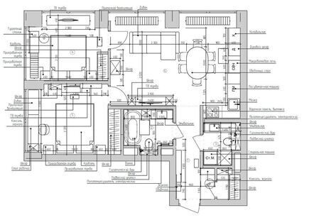
Интерьер этой квартиры выдержан в духе современного стиля. Мягкая пастельная палитра придаёт пространству актуальность и визуальную лёгкость. Гармоничное сочетание материалов и продуманная система освещения эффектно раскрывают идею современного дизайна и создают уютную, сбалансированную атмосферу.
Интерьер этой квартиры выдержан в духе современного стиля. Мягкая пастельная палитра придаёт пространству актуальность и визуальную лёгкость. Гармоничное сочетание материалов и продуманная система освещения эффектно раскрывают идею современного дизайна и создают уютную, сбалансированную атмосферу.
