

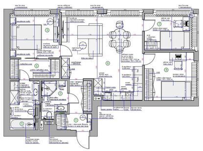
Эта четырёхкомнатная квартира оформлена в стиле модернизм. Пространство впечатляет красивой архитектурой, гармоничными оттенками и продуманной эргономикой, создавая комфорт и визуальную привлекательность. Особое внимание уделено освещению и материалам, что сделало интерьер актуальным и динамичным.
Эта четырёхкомнатная квартира оформлена в стиле модернизм. Пространство впечатляет красивой архитектурой, гармоничными оттенками и продуманной эргономикой, создавая комфорт и визуальную привлекательность. Особое внимание уделено освещению и материалам, что сделало интерьер актуальным и динамичным.
