

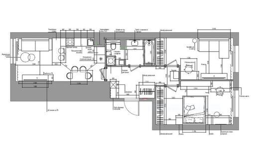
За основу оформления этой трехкомнатной квартиры взят современный стиль. Цветовая гамма, построенная на контрастах, использование разнообразных текстур, высококачественные отделочные материалы, интересный световой сценарий - все это помогло создать комфортный и эстетически привлекательный интерьер.
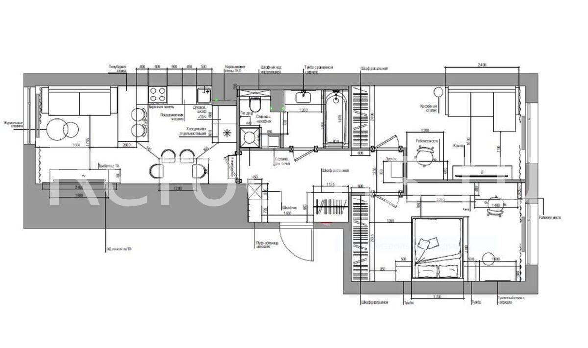
За основу оформления этой трехкомнатной квартиры взят современный стиль. Цветовая гамма, построенная на контрастах, использование разнообразных текстур, высококачественные отделочные материалы, интересный световой сценарий - все это помогло создать комфортный и эстетически привлекательный интерьер.
