
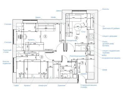
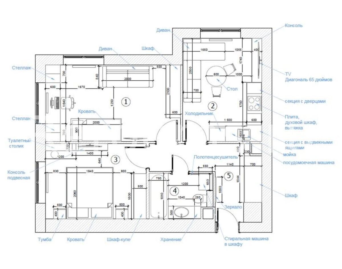
Дизайн-проект трехкомнатной квартиры выполнен в современном стиле. Интересные дизайнерские решения, обилие разнообразных текстур и материалов, современные элементы декора - все это сделало интерьер необычайно гармоничным и целостным. Разноплановое освещение придает пространству индивидуальный характер, а гармоничное сочетание цветов делает его стильным и уникальным.
Дизайн-проект трехкомнатной квартиры выполнен в современном стиле. Интересные дизайнерские решения, обилие разнообразных текстур и материалов, современные элементы декора - все это сделало интерьер необычайно гармоничным и целостным. Разноплановое освещение придает пространству индивидуальный характер, а гармоничное сочетание цветов делает его стильным и уникальным.
