

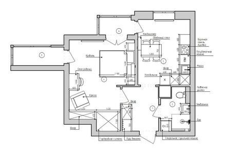
Дизайн-проект однокомнатной квартиры выполнен в современном стиле. Четкая геометрия пространства, интересные архитектурные формы, обилие разнообразных текстур, современные элементы декора в интерьере этой квартиры смотрятся необычайно гармонично и целостно. Разноплановое освещение придает пространству индивидуальный характер, а контрастная цветовая гамма делает его стильным и уникальным.
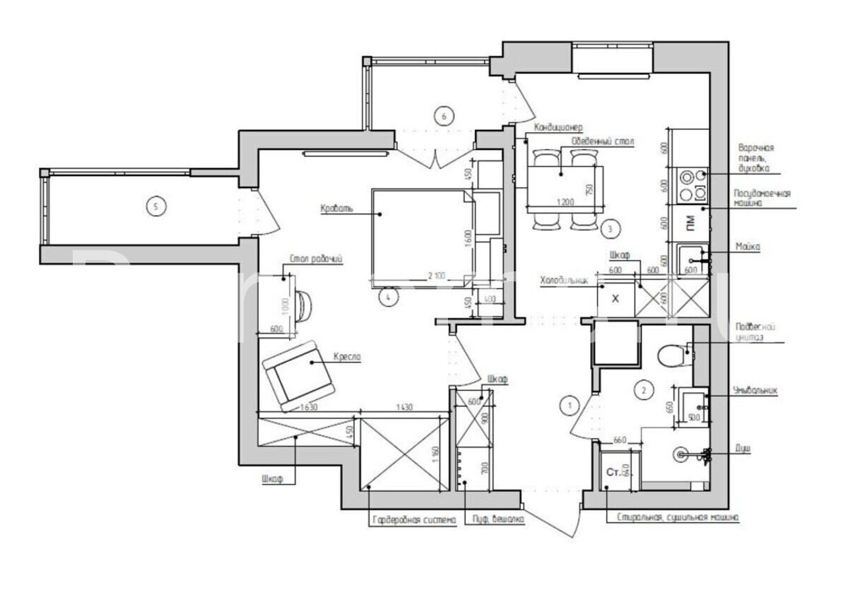
Дизайн-проект однокомнатной квартиры выполнен в современном стиле. Четкая геометрия пространства, интересные архитектурные формы, обилие разнообразных текстур, современные элементы декора в интерьере этой квартиры смотрятся необычайно гармонично и целостно. Разноплановое освещение придает пространству индивидуальный характер, а контрастная цветовая гамма делает его стильным и уникальным.
