

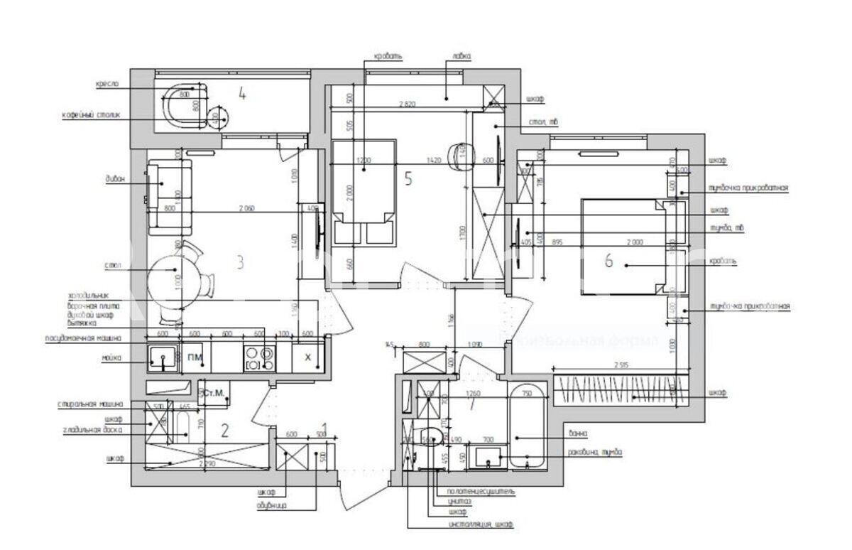
Интерьер этой трехкомнатной квартиры выполнен в стиле современная классика. Гармония и красота здесь сочетаются с удобством и функциональностью. Интерьер не перегружен деталями и подчеркивает респектабельность и изысканный вкус хозяев. Каждое помещение практично и полностью соответствует выбранной концепции. Красивые архитектурные формы и стильный дизайн придают помещению определенный шарм и интересный неординарный вид.
Интерьер этой трехкомнатной квартиры выполнен в стиле современная классика. Гармония и красота здесь сочетаются с удобством и функциональностью. Интерьер не перегружен деталями и подчеркивает респектабельность и изысканный вкус хозяев. Каждое помещение практично и полностью соответствует выбранной концепции. Красивые архитектурные формы и стильный дизайн придают помещению определенный шарм и интересный неординарный вид.
