

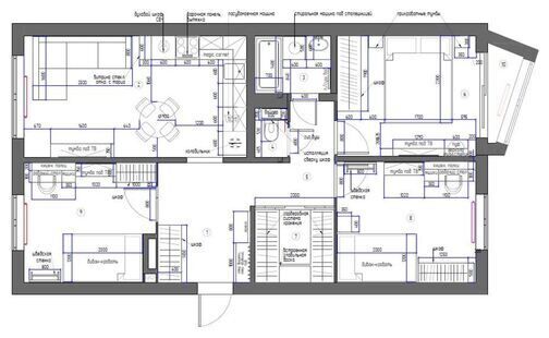
Интерьер этой четырёхкомнатной квартиры решён в современном ключе. Нейтрально-бежевые оттенки наполняют пространство лёгкой элегантностью, а выразительные архитектурные линии, игра материалов и продуманное освещение создают цельную композицию.
Интерьер этой четырёхкомнатной квартиры решён в современном ключе. Нейтрально-бежевые оттенки наполняют пространство лёгкой элегантностью, а выразительные архитектурные линии, игра материалов и продуманное освещение создают цельную композицию.
