

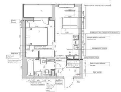
Проект этой однокомнатной квартиры выполнен в современном стиле. Гармоничное сочетание цветов, игра на контрастах, использование разнообразных текстур, высококачественные отделочные материалы, интересный световой сценарий - все это помогло создать комфоррный и эстетически привлекательный интерьер.
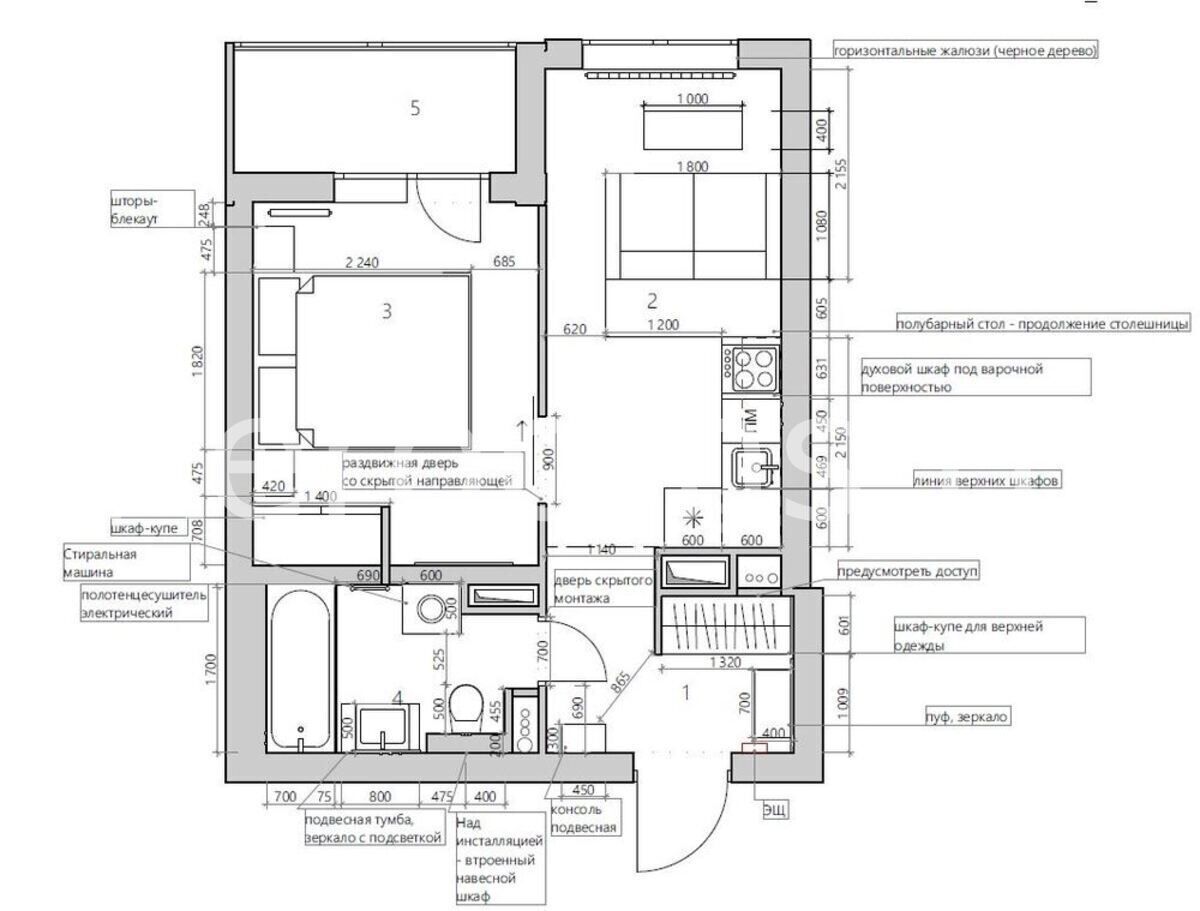
Проект этой однокомнатной квартиры выполнен в современном стиле. Гармоничное сочетание цветов, игра на контрастах, использование разнообразных текстур, высококачественные отделочные материалы, интересный световой сценарий - все это помогло создать комфоррный и эстетически привлекательный интерьер.
