

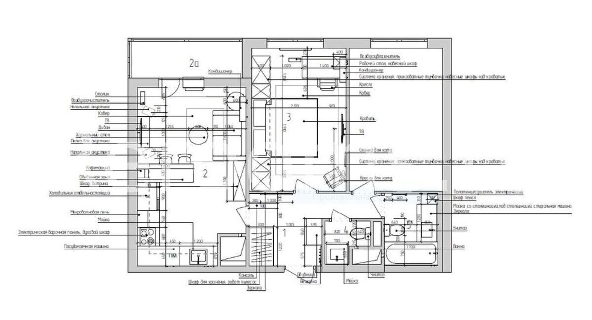
Дизайн этой квартиры выдержан в современном стиле. Цветовая гамма с использованием ярких акцентов делает интерьер ультрамодным и красивым. Комбинация различных материалов, продуманная эргономика, оригинальный световой сценарий - все это работает на поддержание концепции современного дизайна.
Дизайн этой квартиры выдержан в современном стиле. Цветовая гамма с использованием ярких акцентов делает интерьер ультрамодным и красивым. Комбинация различных материалов, продуманная эргономика, оригинальный световой сценарий - все это работает на поддержание концепции современного дизайна.
