

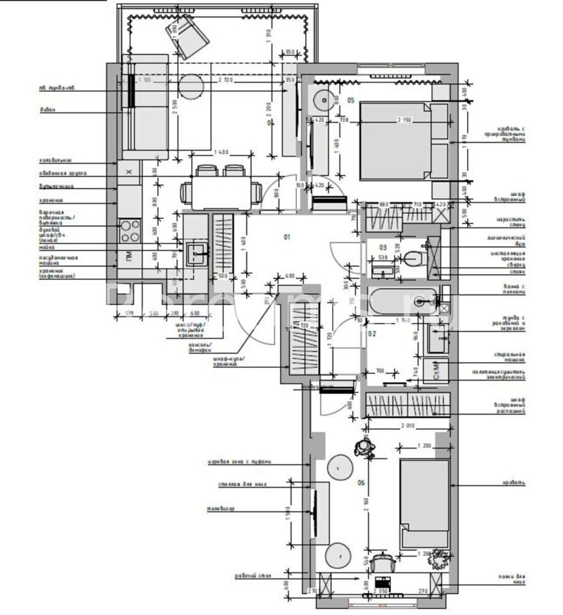
Интерьер в духе модернизма сочетает утончённость и элегантность. Чёткая архитектура пространства, выверенная палитра базовых и акцентных тонов, продуманная эргономичная мебель и разноплановое освещение формируют современный облик квартиры и подчеркивают целостность её стилистической идеи.
Интерьер в духе модернизма сочетает утончённость и элегантность. Чёткая архитектура пространства, выверенная палитра базовых и акцентных тонов, продуманная эргономичная мебель и разноплановое освещение формируют современный облик квартиры и подчеркивают целостность её стилистической идеи.
