

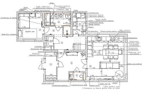
Интерьер в стиле модернизм — это изысканность и тщательно выверенная эстетика. Четкая архитектура пространства, гармония базовых тонов с выразительными акцентами и комфортная эргономичная мебель формируют актуальный облик квартиры и подчеркивают выбранное стилевое направление.
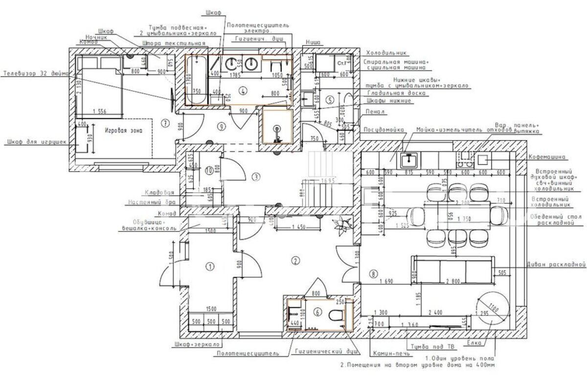
Интерьер в стиле модернизм — это изысканность и тщательно выверенная эстетика. Четкая архитектура пространства, гармония базовых тонов с выразительными акцентами и комфортная эргономичная мебель формируют актуальный облик квартиры и подчеркивают выбранное стилевое направление.
