

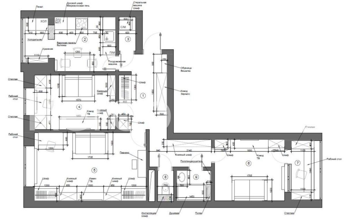
Основные черты стиля контемпорари, такие как изящество форм, функциональность, гармония цвета, микс разных фактур, максимум воздуха и естественного света, нашли отражение в дизайн-проекте этой квартиры. Интерьер получился очень современным, элегантным и функциональным.
Основные черты стиля контемпорари, такие как изящество форм, функциональность, гармония цвета, микс разных фактур, максимум воздуха и естественного света, нашли отражение в дизайн-проекте этой квартиры. Интерьер получился очень современным, элегантным и функциональным.
