

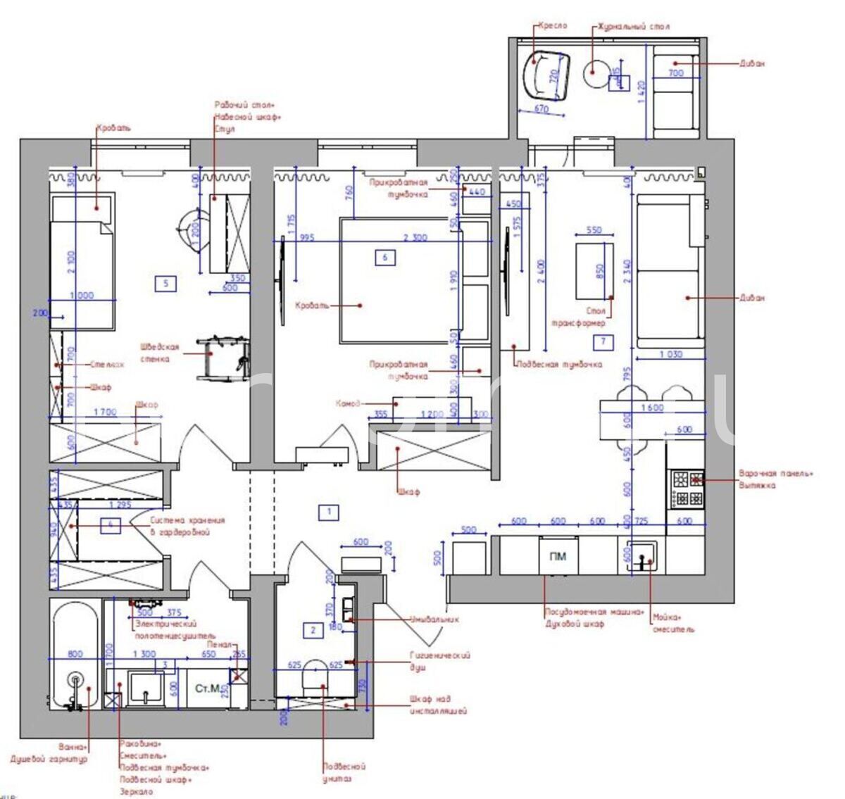
Дизайн-проект этой трехкомнатной квартиры выполнен в духе модернизма, где каждая деталь подчинена общей концепции этого стиля. Лаконичные линии, гармоничные цвета и продуманная эргономика делают пространство удобным и эстетически выразительным. Большое внимание уделено освещению и выбору материалов, что придает интерьеру динамику и глубину.
Дизайн-проект этой трехкомнатной квартиры выполнен в духе модернизма, где каждая деталь подчинена общей концепции этого стиля. Лаконичные линии, гармоничные цвета и продуманная эргономика делают пространство удобным и эстетически выразительным. Большое внимание уделено освещению и выбору материалов, что придает интерьеру динамику и глубину.
