

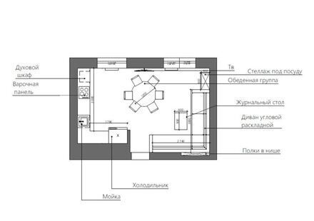
Стиль модернизм создает необыкновенную атмосферу в помещении. Интерьер, оформленный в этом стиле, отличается особой утонченностью. Интересные дизайнерские находки, гармоничная цветовая гамма, удобная эргономичная мебель - все это работает на поддержание выбранной стилистической концепции в интерьере этой кухни-гостиной.
Стиль модернизм создает необыкновенную атмосферу в помещении. Интерьер, оформленный в этом стиле, отличается особой утонченностью. Интересные дизайнерские находки, гармоничная цветовая гамма, удобная эргономичная мебель - все это работает на поддержание выбранной стилистической концепции в интерьере этой кухни-гостиной.
