

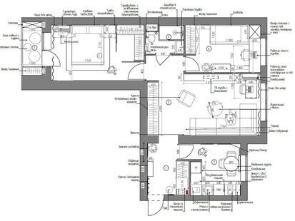
Дизайн этой трёхкомнатной квартиры выполнен в современном ключе, где каждое дизайнерское решение работает на создание цельной и сбалансированной атмосферы. Многоуровневое освещение придаёт характер и глубину, а тщательно подобранная цветовая гамма подчёркивает индивидуальность этого проекта.
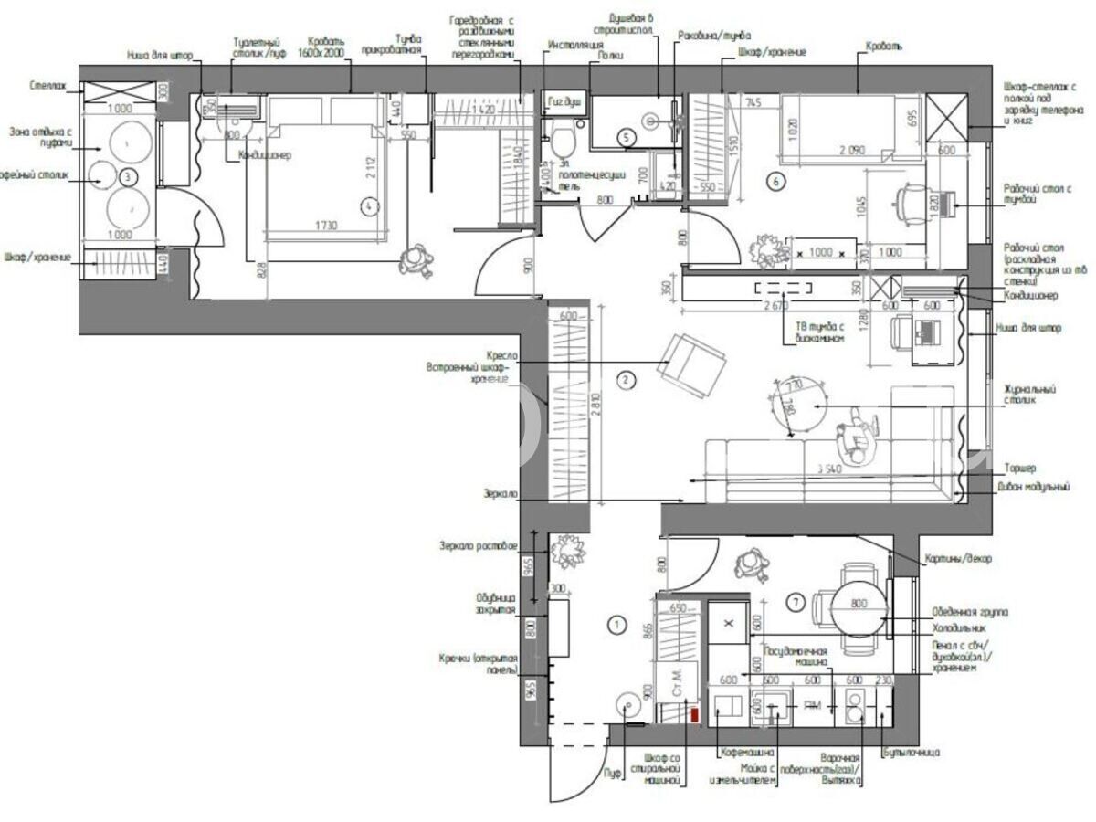
Дизайн этой трёхкомнатной квартиры выполнен в современном ключе, где каждое дизайнерское решение работает на создание цельной и сбалансированной атмосферы. Многоуровневое освещение придаёт характер и глубину, а тщательно подобранная цветовая гамма подчёркивает индивидуальность этого проекта.
