

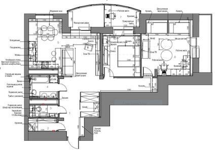
Проект двухкомнатной квартиры реализован в современном стиле. Игра фактур и современные детали декора объединены в единую композицию, создавая ощущение гармонии и целостности. Разнообразные сценарии освещения придают интерьеру характер, а удачное цветовое решение наполняет его особым шармом и уникальностью.
Проект двухкомнатной квартиры реализован в современном стиле. Игра фактур и современные детали декора объединены в единую композицию, создавая ощущение гармонии и целостности. Разнообразные сценарии освещения придают интерьеру характер, а удачное цветовое решение наполняет его особым шармом и уникальностью.
