

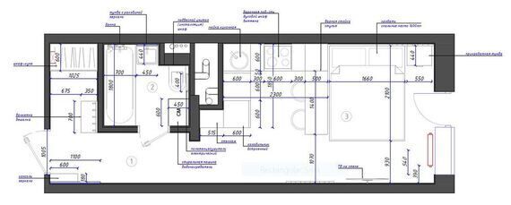
Эта небольшая квартира-студия оформлена в современном стиле с акцентом на природную палитру, которая делает интерьер ультрамодным и актуальным. Продуманная планировка, разнообразные фактуры и хорошо выстроенное освещение подчёркивают концепцию современного и уютного пространства.
Эта небольшая квартира-студия оформлена в современном стиле с акцентом на природную палитру, которая делает интерьер ультрамодным и актуальным. Продуманная планировка, разнообразные фактуры и хорошо выстроенное освещение подчёркивают концепцию современного и уютного пространства.
