
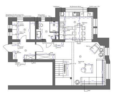
Дизайн-проект этажа частного дома выполнен в стиле современная классика. Интерьер отличается изяществом и функционализмом. Здесь все продумано до мелочей. Цвет, отделка, композиция, а также разнообразные приемы декорирования создают в квартире неповторимую атмосферу респектабельности и уюта.
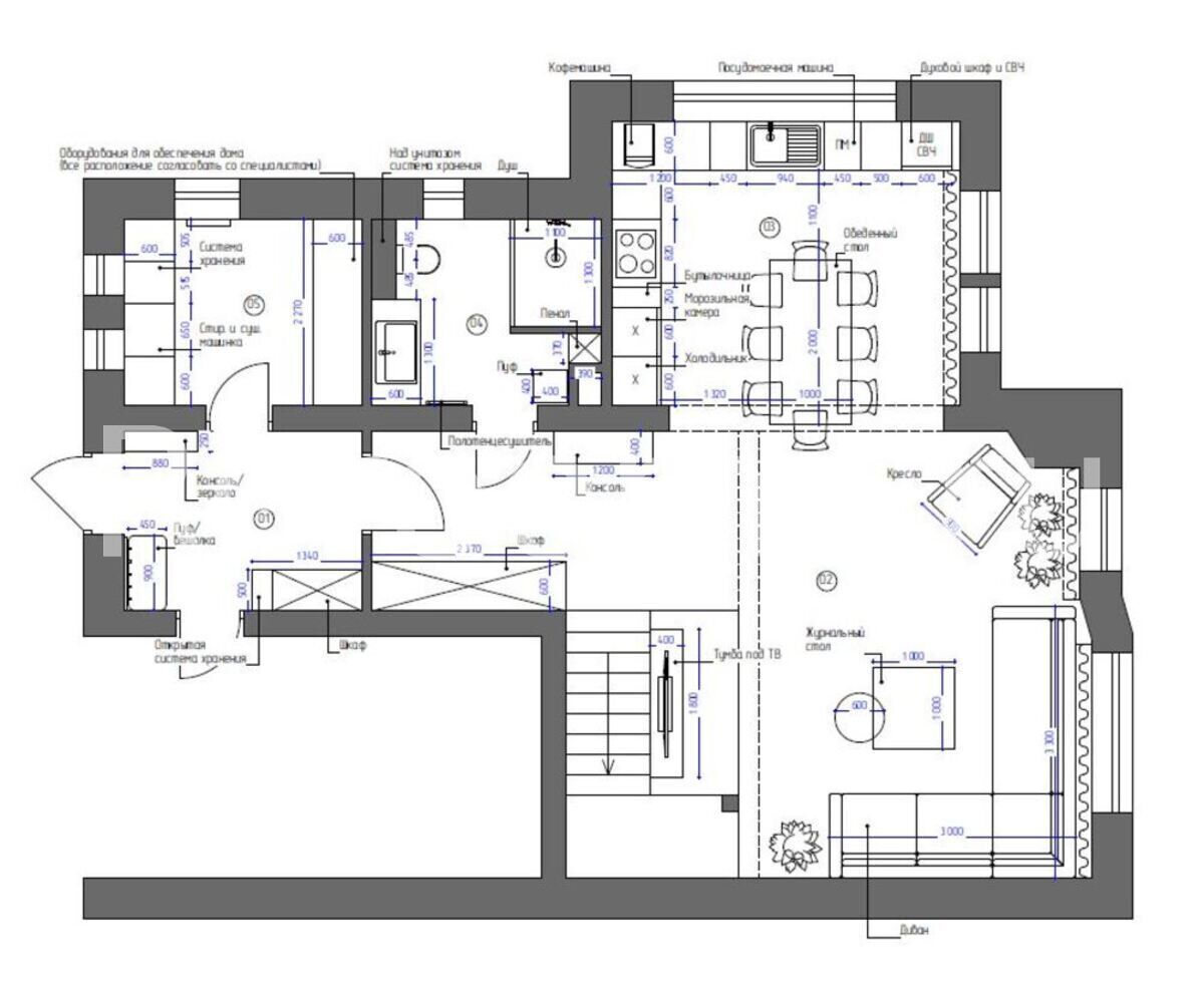
Дизайн-проект этажа частного дома выполнен в стиле современная классика. Интерьер отличается изяществом и функционализмом. Здесь все продумано до мелочей. Цвет, отделка, композиция, а также разнообразные приемы декорирования создают в квартире неповторимую атмосферу респектабельности и уюта.
