

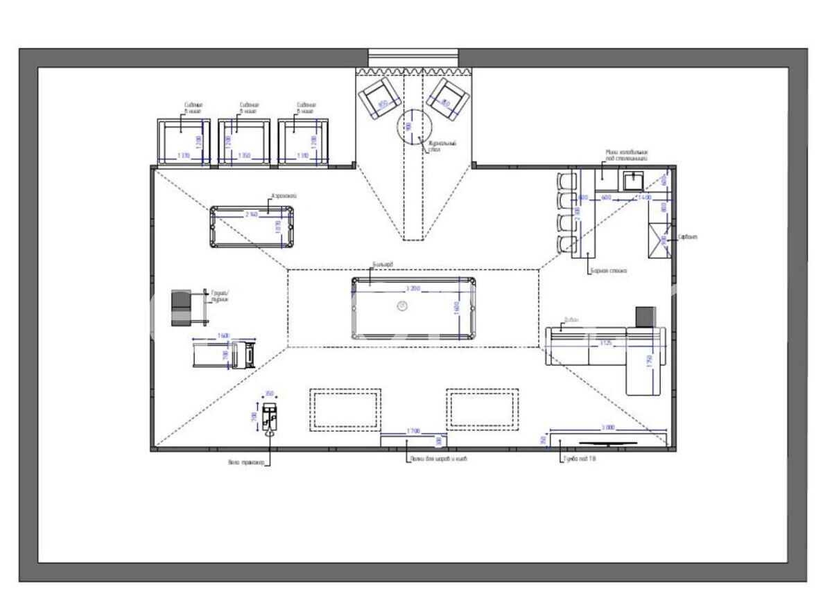
Дизайн мансардного этажа дома выдержан в современном стиле. Здесь дизайнер оборудовала бильярд, а так же мини спортзал с зоной отдыха. Интересная архитектура пространства, комбинация различных материалов и оригинальный световой сценарий - все это работает на поддержание концепции современного дизайна.
Дизайн мансардного этажа дома выдержан в современном стиле. Здесь дизайнер оборудовала бильярд, а так же мини спортзал с зоной отдыха. Интересная архитектура пространства, комбинация различных материалов и оригинальный световой сценарий - все это работает на поддержание концепции современного дизайна.
