

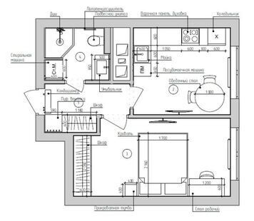
Дизайн этой квартиры выполнен в современном стиле. Контрастная цветовая палитра придает интерьеру модный и элегантный вид. Сочетание различных материалов и уникальное освещение создают стильный и актуальный образ.
Дизайн этой квартиры выполнен в современном стиле. Контрастная цветовая палитра придает интерьеру модный и элегантный вид. Сочетание различных материалов и уникальное освещение создают стильный и актуальный образ.
