

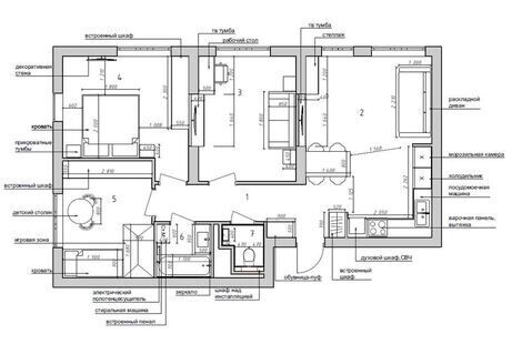
Интерьер этой четырехкомнатной квартиры выполнен в современном стиле: сбалансированная цветовая гамма придает интерьеру гармоничный и актуальный вид. Интересные архитектурные элементы, разнообразие фактур и необычные световые акценты органично взаимодействуют, поддерживая единую концепцию.
Интерьер этой четырехкомнатной квартиры выполнен в современном стиле: сбалансированная цветовая гамма придает интерьеру гармоничный и актуальный вид. Интересные архитектурные элементы, разнообразие фактур и необычные световые акценты органично взаимодействуют, поддерживая единую концепцию.
