

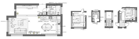
Стиль модернизм - это смелые эксперименты с цветом и формой, игра с пространством и одновременно - практичность и удобство. Это направление создает необыкновенную атмосферу в помещении. Интерьер, оформленный в стиле модернизм, отличается особой утонченностью. Интересные дизайнерские находки, контрастная цветовая гамма, удобная эргономичная мебель - все это работает на поддержание стилистической концепции этого дома.
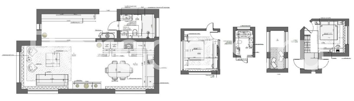
Стиль модернизм - это смелые эксперименты с цветом и формой, игра с пространством и одновременно - практичность и удобство. Это направление создает необыкновенную атмосферу в помещении. Интерьер, оформленный в стиле модернизм, отличается особой утонченностью. Интересные дизайнерские находки, контрастная цветовая гамма, удобная эргономичная мебель - все это работает на поддержание стилистической концепции этого дома.
