
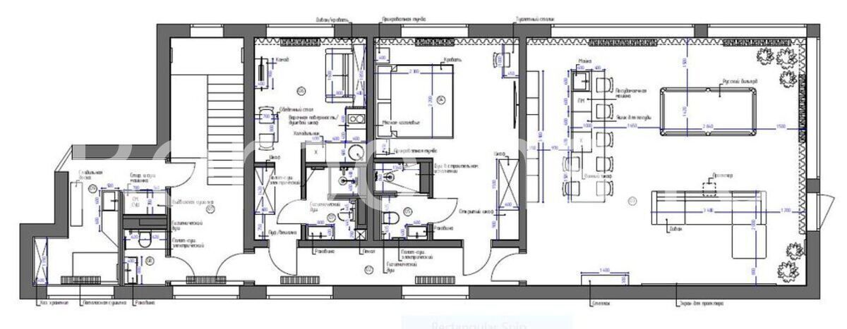
Дизайн этого дома основан на принципах современного стиля. Светлая и воздушная палитра, разнообразие текстур, высококачественные отделочные материалы и грамотно спланированное освещение сформировали интерьер, сочетающий уют и эстетическую выразительность.
Дизайн этого дома основан на принципах современного стиля. Светлая и воздушная палитра, разнообразие текстур, высококачественные отделочные материалы и грамотно спланированное освещение сформировали интерьер, сочетающий уют и эстетическую выразительность.
